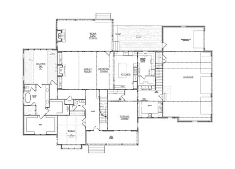
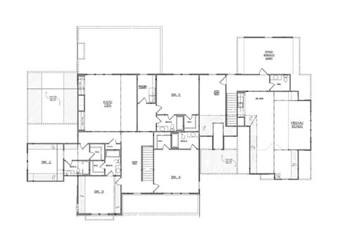
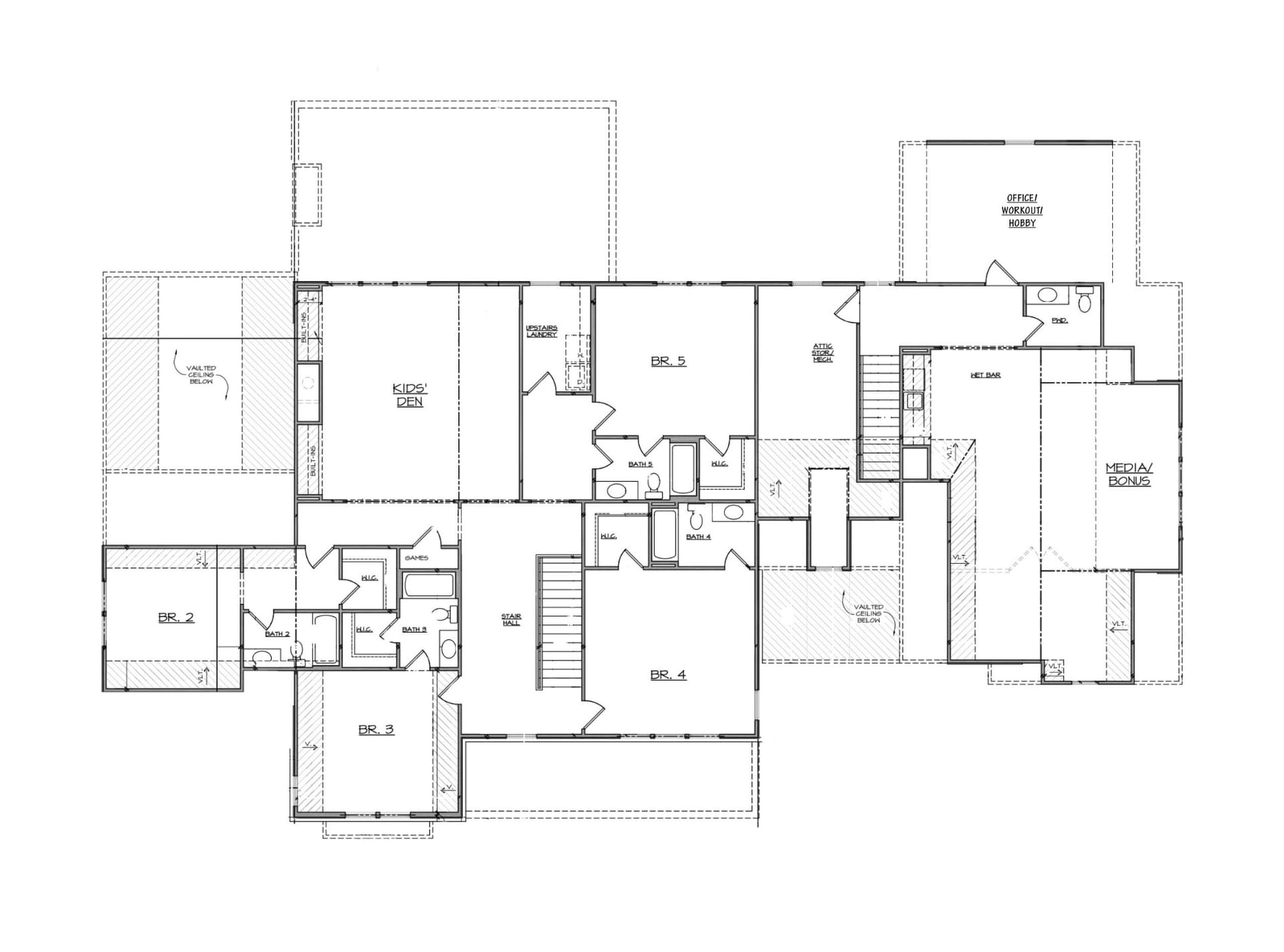
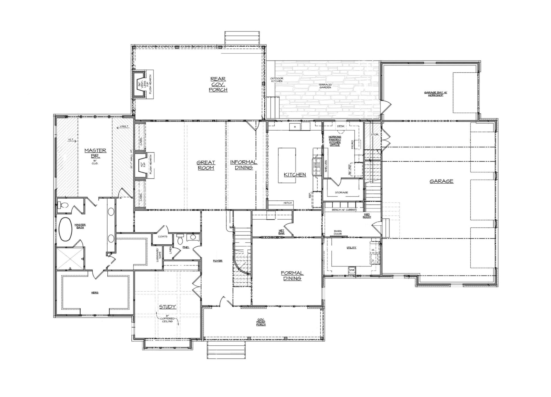
Owen Hill Farm Lot 5 Acreage: 5 Bedrooms: 5 Bathrooms: 7 Square Feet: 6335 Details Speculative Residence coming soon Previous Project Owen Hill Farm Lot 3 Next Project Primm Farm